STEYREGG – PULGARN: Exclusiv, familär mit Aussicht und höchstem Wohnkomfort

 

Hier entsteht ein durchdacht geplantes, exklusives, qualitativ sowie optisch ansprechendes Projekt mit elf Wohneinheiten in Niedrigstenergiebauweise. Dieses umfasst zwei Doppelhaushälften drei geschossig  und drei Reihenhäuser zwei geschossig  und 6 XXL – Doppelhäuser vier geschossig….

Die zum Verkauf stehenden Doppelhaushälften verfügen über eine Fläche von 137m2 die Reihenhäuser verfügen über eine Fläche von 123 m2 oder 132m2   und die XXL Doppelhäuser über 156 m2 

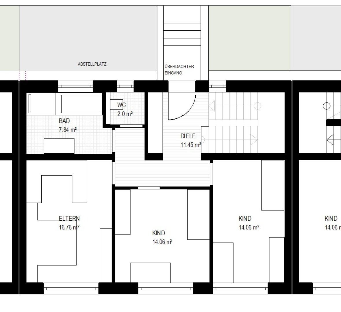
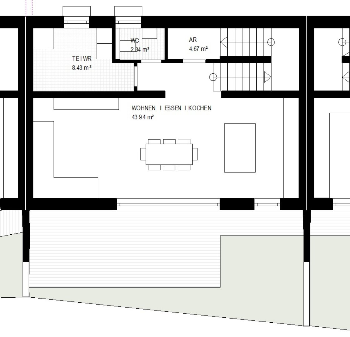
Der offene lichtdurchflutete Wohn-Essbereich fungiert als Herzstück der Immobilie. Die großflächigen Verglasungen ermöglichen einen traumhaften Fernblick. Von dort erreichen Sie die großzügige Terrassen die zum Verweilen im Freien einladen und den Wohnraum entsprechend erweitert. Zwei oder drei WC, 1 oder 2 Bäder und ein oder zwei Abstellräume komplettieren diese Ebenen.

 

Das Obergeschoß beinhaltet drei geräumige Schlafräume, wobei im Elternbereich ein Schrankraum integriert ist. Neben einem Badezimmer mit Dusche und Badewanne steht ein weiterer Raum mit Waschmaschinenanschluss und einem weiteren WC zur Verfügung. Vor dort gelangen Sie auf einen weiteren Außenbereich

oder bei den XXL Varianten ein weiteres Studio auf der vierten Ebene.

Auf Wunsch bieten wir Ihnen. auch gerne die schlüsselfertige Variante an…

 

Jede Einheit beinhaltet entweder einen Garagenplatz oder ein Carport sowie einen zusätzlichen PKW-Abstellplatz oder Doppelgarage bei den XXL Varianten mit mehreren Stellplätzen und zwei Terrassen auf größeren Parzellen.

Der Vermittler ist als Doppelmakler tätig.

Preis

515.490

Nähere Informationen oder einen Besichtigungstermin erhalten Sie gerne bei Ing MBA Hermann Brückl unter +43 6601896686.